FALKENBERGHUSET
Byggnadstypologi Villa/gård
Plats Nordsjælland
Datum 2025
Samarbete Hand On Architecture, www.hoa.dk
Beskrivning:
Falkenberghuset uppfördes år 1827 och har sedan dess endast genomgått mindre renoveringar och ombyggnationer. Den nyligen inflyttade byggherren består av en ung familj med en önskan om att skräddarsy husets interiör efter sin unika och personliga vision av ett hem.
Ursprunglig planlösning för bottenvåning och övervåning:
Familjen eftersträvar tydligt definierade och funktionella utomhusrum som kopplas till – och prioriteras på samma nivå som – de inre rummen. En central del av skissprocessen har bestått i rumsliga diagram där just dessa uterum har behandlats som om de vore interiöra:
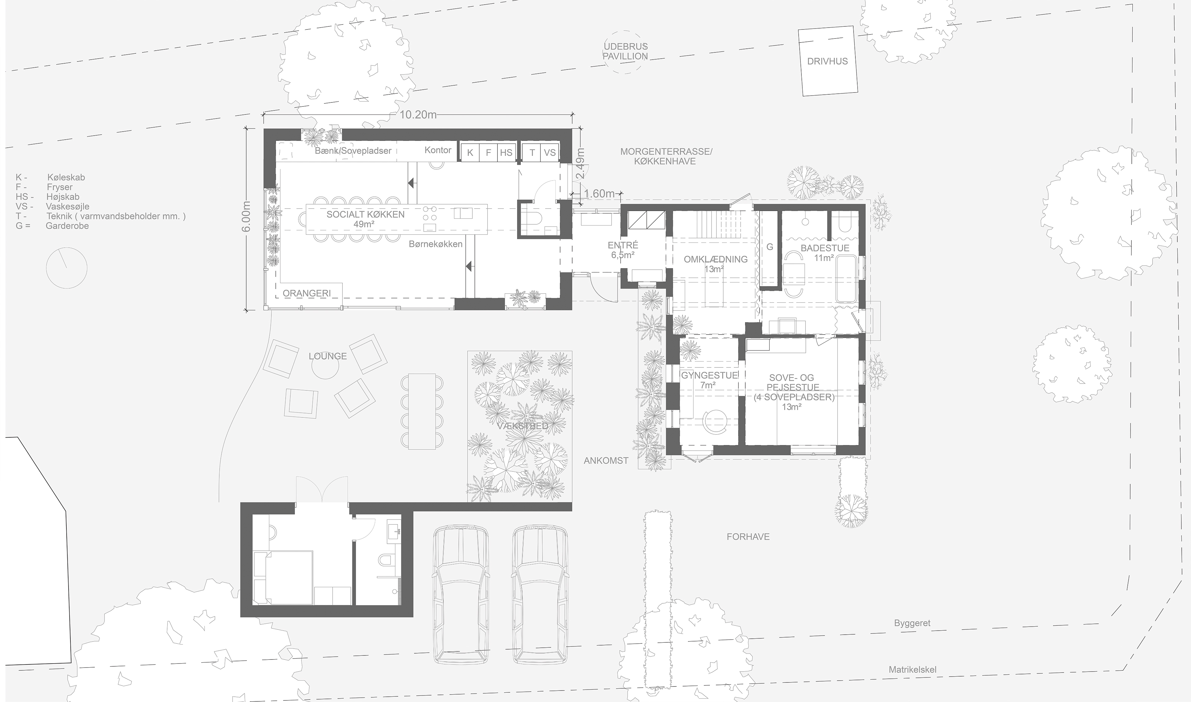
Familjen önskar inte traditionella rum som sovrum, badrum, kök och vardagsrum. De ser sig själva som en sammanhållen enhet som följs åt och stöttar varandra genom vardagens rutiner. De vill göra saker tillsammans, och därför omvandlas privata rumsliga funktioner till gemensamma zoner; sovrummen slås samman till ett sov- och eldstadsrum som kopplas till ett gemensamt badhus och omklädningszon. Husets tidigare badrum tas bort och används istället som koppling till en tillbyggnad:

Tillbyggnaden rymmer en entré, gäst-wc samt ett stort uppehålls- och multifunktionsrum. Multirummet innehåller vuxen- och barnkök, matsal, vardagsrum, arbetsplats, orangeri och till och med sovplatser för den som önskar ta en tupplur eller stanna över natten i gemenskapen.

Visualisering av inredningsprincipen för Falkenberghuset, där synliga bjälkar och murverk framhävs.

Axonometrisk vy över byggnaderna på tomten, inklusive det nya annexet:









